


Haut de gamme pas cher direct usine avec livraison par transporteur spécialisé !
La Baie Vitrée à Galandage 2 Vantaux avec 1 Monorail, à rupture de pont thermique, est votre solution pour une très grande ouverture vers l'extérieur.
Le principe du galandage permet de libérer complètement l'ouverture est d'avoir une esthétique fine.
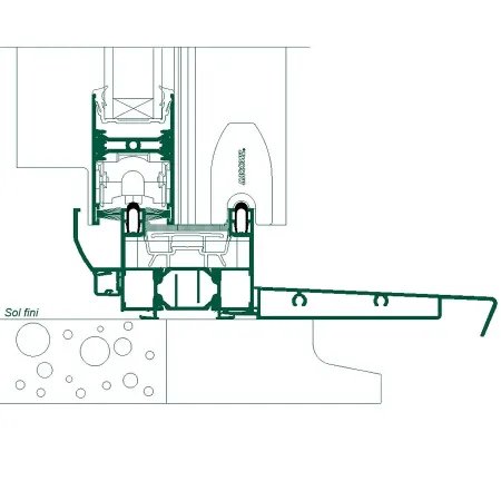
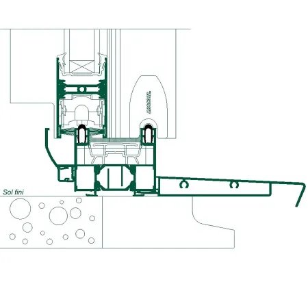
La Baie Vitrée à Galandage à 2 Ouvrants latéraux, à 1 rail, est prévue pour isolation de 160 mm, peux être fabriquer jusqu'à une largeur d'ouverture libre de 3m10, et 2,25 ml en hauteur.
Moins de profilés aluminium c'est plus de lumière chez vous !
La finesse des profils Aluminium et la disparition des vantaux derrière l'isolant permettent un maximum de lumière tout en gardant la robustesse.
Qualité Aluminium Haut de Gamme à Prix Pas Cher Direct Usine !
Vitrage isolant clair 4 mm /20 mm gaz argon/ 4 mm FE ( Faible Emissivité ) avec intercalaire alu noir.
Poignée Sarena sur vantail de service et poignée coquille encastrée sur vantail secondaire.
Sécurité renforcée par 1, 2 ou 3 points ( suivant les dimensions ). Option Secure+.
Rail en aluminium ( option possible ).
Grand choix de coloris avec laquage garanti 25 ans.
Nous consulter par mail pour toutes demandes spéciales et pour les grandes quantités
Dans le cas d'une pose sur allège préciser dans le commentaire ou par mail sa hauteur par rapport au sol pour définir la hauteur de poignée
Pour bi-coloration nous demander par mail.
Pensez-y: le vitrage isolant solaire 4 saisons réduit l'effet de la chaleur solaire directe : 50% de plus qu'un double vitrage ordinaire (diminution de l’effet de “serre”). Pendant l'hiver, le renfort 4 saisons maintient les performances d'isolation thermique très élevées, offrant ainsi plus de confort près des vitrages, réduction de l'effet des parois froides, économies de chauffage.
Rail aluminium dans dormant de 70 mm hauteur avec galets polyamide inclus dans prix de base.
Poignée cuvette intérieure ( type coquille encastrée ) et poignée SABBA sur vantail principal, inclus dans prix de base.
Sur menuiserie blanche poignée blanche et poignée noire sur tous autres coloris de menuiseries.
VR BLOC BAIE COFFRE PVC ISOLE MANOEUVRE TRINGLE MANUELLE TABLIER ALU COULISSES ALU ET LAMES ALU 40 X 8 MM ISOLEES
Dimensions de 850 mm à 2250 mm hauteur et de 1000 mm à 3100 mm largeur
VR BLOC BAIE COFFRE PVC ISOLE MOTEUR SIMU FILAIRE INVERSEUR ENCASTRE TABLIER ALU COULISSES ALU ET LAMES ALU 40 X 8 MM ISOLEES
Dimensions de 850 mm à 2250 mm hauteur et de 1000 mm à 3100 mm largeur
VR BLOC BAIE COFFRE PVC ISOLE MOTEUR FILAIRE SOMFY EMETTEUR MURAL TABLIER ALU COULISSES ALU ET LAMES ALU 40 X 8 MM ISOLEES
Dimensions de 850 mm à 2250 mm hauteur et de 1000 mm à 3100 mm largeur
VR BLOC BAIE COFFRE PVC ISOLE MOTEUR SIMU RADIO AVEC EMETTEUR MURAL TABLIER ALU COULISSES ALU ET LAMES ALU 40 X 8 MM ISOLEES
Dimensions de 850 mm à 2250 mm hauteur et de 1000 mm à 3100 mm largeur
VR BLOC BAIE COFFRE PVC ISOLE MOTEUR SOMFY RTS EMETTEUR SMOOVE TABLIER ALU COULISSES ALU ET LAMES ALU 40 X 8 MM ISOLEES
Dimensions de 850 mm à 2250 mm hauteur et de 1000 mm à 3100 mm largeur
Coffre PVC avec trappe de visite déclipable.
* 2 tailles de coffres sont disponibles 195 mm jusqu'à 2350 mm hauteur et 225 mm au dessus.
* Coloris possibles : Blanc 9016 ( inclus dans prix de base ), Blanc (9010), Beige (1015) et Gris (7035) avec plus-value.
Choisissez votre couleur pour les coulisses et le tablier en lames aluminium isolées de 40 mm x 8 mm.